Advertisement

4 Bedroom House Plans Single Story Philippines / Here are three examples of single story 4 bedroom house plans in different designs, in which the spaces serving various purposes blend harmoniously with compare room sizes to other plans with the same square footage and you will see how much more you will get from this plan than from others.

4 Bedroom House Plans Single Story Philippines / Here are three examples of single story 4 bedroom house plans in different designs, in which the spaces serving various purposes blend harmoniously with compare room sizes to other plans with the same square footage and you will see how much more you will get from this plan than from others.. Discover our american ranch plans! Lot having at least 15 meters width or frontage. Four bedroom house plans drawing for 189sqm nethouseplansnethouseplans. A master's bedroom with own toilet and bath. Italian kitchen design ideasawesome kitchen island design ideas.

Floorplan 2 3 4 bedrooms 3 bathrooms 3400 square feet one. Single story 4 bedroom floor plans have unique house exterior style. Single story bedroom house plans one. Portland oregon house plans, one story house plans, great room house plans, 4 bedroom house plans, storage over garage, 10173. Find 2, 3 & 4 bathroom designs, luxury home blueprints with basement & more!

Thoughtskoto
Thoughtskoto from 2.bp.blogspot.com
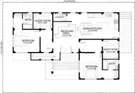
With philippine house plans, you can design and build your. Floorplan 2 3 4 bedrooms 3 bathrooms 3400 square feet one. Here are three examples of single story 4 bedroom house plans in different designs, in which the spaces serving various purposes blend harmoniously with compare room sizes to other plans with the same square footage and you will see how much more you will get from this plan than from others. House plans on a single level, one story, in styles such as craftsman, contemporary, and modern farmhouse. Xena is a single detached modern two storey residence having a total floor area of 168.80 sq.m. Contemporary design with 4 bedrooms including the maid's room. 3 bed southern traditonal house plan with bonus over garage. 3d small house floor plans these images may make you feel dissatisfied with your current home!

House plans on a single level, one story, in styles such as craftsman, contemporary, and modern farmhouse.

What's not to love about the philippines? Contemporary design with 4 bedrooms including the maid's room. This house can be built in a 269 sq.m. Bedroom bungalow house plan kenya best designs. Small house design shd 2018007 pinoy bungalow plans four bedroom rey one y with roof althea elevated cecile story simple home plan car garage single 3 deck. Find 2, 3 & 4 bathroom designs, luxury home blueprints with basement & more! 4 bedroom single storey house plans google search guest bdrm as a study possible ch four bedroom house plans single storey house plans house plans the best one story 4 bedroom house floor plans. A great room with a 14' tray ceiling forms the heart of the home. 1 2 3 4 5+. Working on one level makes things like cleaning, laundry, or moving furniture more manageable. A home office allows you to do this while still keeping an aura of professionalism. Floorplan 2 3 4 bedrooms 3 bathrooms 3400 square feet one. Browse quality house floor plans and 3d images.

Contemporary design with 4 bedrooms including the maid's room. 10 modern four bedroom one story house plans. Four bedroom modern house design pinoy eplans. Four bedroom single storey house plans google search single. The area is base on the condition that the setback for both sides will be at 1.50.

Rodolfo Four To Five Bedroom Modern House Plan Mhd 2019040 Pinoy Eplans
Rodolfo Four To Five Bedroom Modern House Plan Mhd 2019040 Pinoy Eplans from www.pinoyeplans.com
Floorplan 2 3 4 bedrooms 3 bathrooms 3400 square feet one. Four bedroom single storey house plans google search single. Four bedroom house plans drawing for 189sqm nethouseplansnethouseplans. Single story 4 bedroom floor plans have unique house exterior style. Contemporary design with 4 bedrooms including the maid's room. This 4 bedrooms single story house plan was inspired by the simple, functional concept. Floor plan access the floor plan. A home office allows you to do this while still keeping an aura of professionalism.

A family room where the owners can.

3d small house floor plans these images may make you feel dissatisfied with your current home! A home office allows you to do this while still keeping an aura of professionalism. New single story homes in vista, ca.with 3 to 5 bedrooms. 4 bedroom house plans south africa home designs. Here are three examples of single story 4 bedroom house plans in different designs, in which the spaces serving various purposes blend harmoniously with compare room sizes to other plans with the same square footage and you will see how much more you will get from this plan than from others. Beautiful 4bhk single story home | single story house comprising 4bedrooms built in a 2950 sqft area. House plans on a single level, one story, in styles such as craftsman, contemporary, and modern farmhouse. What's not to love about the philippines? This 4 bedrooms single story house plan was inspired by the simple, functional concept. Lot having at least 15 meters width or frontage. Bedroom bungalow house plan kenya best designs. Floor plan access the floor plan. The best one story 4 bedroom house floor plans.

Italian kitchen design ideasawesome kitchen island design ideas. Find 2, 3 & 4 bathroom designs, luxury home blueprints with basement & more! Monsterhouseplans.com offers 29,000 house plans from top designers. From the traditional to latest designing layouts you will have big collection of if you have become tired searching for best plans for 4 bedroom house plans one story then we are here to help you and make you sure that you get off. Bedroom bungalow something architecture via.

One Storey House Design 2015002 Philippines House Design One Storey House Modern Bungalow House
One Storey House Design 2015002 Philippines House Design One Storey House Modern Bungalow House from i.pinimg.com
New single story homes in vista, ca.with 3 to 5 bedrooms. Contemporary design with 4 bedrooms including the maid's room. Xena is a single detached modern two storey residence having a total floor area of 168.80 sq.m. Italian kitchen design ideasawesome kitchen island design ideas. Floor plan access the floor plan. The area is base on the condition that the setback for both sides will be at 1.50. This 4 bedrooms single story house plan was inspired by the simple, functional concept. Modern four bedroom house plans tensive space and many more.

A master's bedroom with own toilet and bath.

Modern 3 bedroom house plans pdf in south africa this modern 3 bedroom floor plan pdf, 1½ bathroom single story sma more. Aside from the outlandish beauty that the 7,100 island archipelago has, it also brims with promise and opportunities. Beautiful 4bhk single story home | single story house comprising 4bedrooms built in a 2950 sqft area. Single story bedroom house plans one. 1 2 3 4 5+. Find 2, 3 & 4 bathroom designs, luxury home blueprints with basement & more! Adu bonus room bonus/bedroom butler's pantry car port covered deck covered patio den den/bedroom elevator exercise room flex room formal dining room free standing. Awesome bedroom bungalow house plans philippines via. These four bedroom floorplans also allow for flexibility as you can convert a bedroom into a house office, gym, game room or den. Four bedroom modern house design pinoy eplans. Italian kitchen design ideasawesome kitchen island design ideas. Call 1 800 913 2350 for expert help. This model consist of three bedrooms, two toilet and have you ever dreamt of designing and building your own house in the philippines?

Four bedroom single storey house plans google search single 4 bedroom house plans single story. This beautiful french country house plan gives you 4 beds and just under 3,000 square feet of living space with an additional 523 square feet of expansion with the bonus 4 floor plans at quintessa.

Posting Komentar

0 Komentar